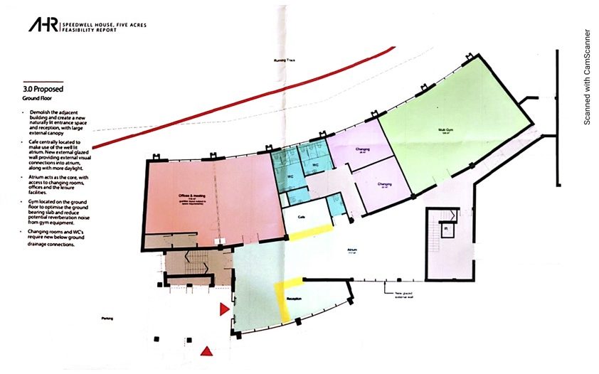
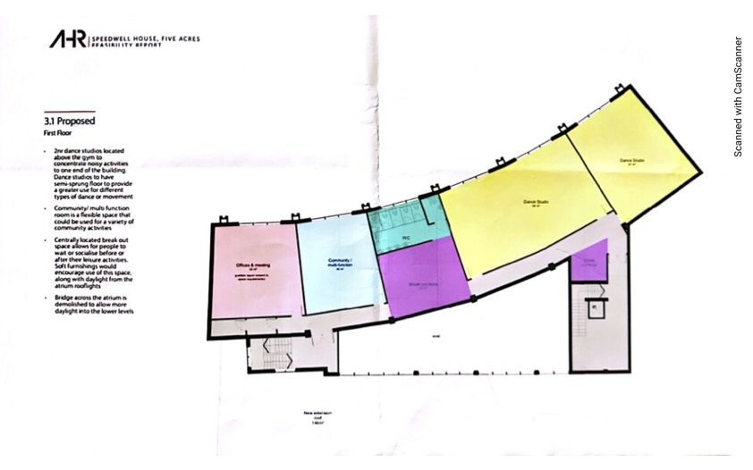
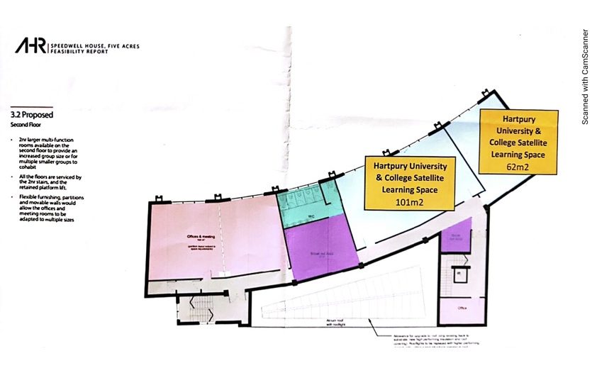
Canopy wants your help!
All creatives living in the Forest of Dean who are interested in the development of the Five Acres site, Berry Hill, Coleford are encouraged to look at these available documents collected from the Community Drop In Event on Thursday 25th November 2021. On the questionnaire there is space at the top to add your ideas for each floor, and at the bottom of the table under “other”. This presents a major opportunity for the arts and for you to add your voice to the plans for the site, before they move forward to the development phase. Please download and complete the questionnaire by 14th January 2022 so that the information can be collated and forwarded to the Forest of Dean District Council. When the questionnaire download opens up in your browser, simply right click and select ‘save as’ to save the document to your computer. It will need to be printed, filled out, and then scanned in or photographed and emailed to fodcreativecanopy@gmail.com









